Salta al contenuto principale
Appartamento 42mq Genova Castelletto
€ 205000 Vendita

Appartamento 42mq Genova Castelletto

Informazioni Gallery

Nel cuore dell'elegante quartiere di Castelletto, a pochi passi dalla suggestiva Spianata e in una posizione ottimamente servita, sorge un raffinato progetto di valorizzazione immobiliare.
L'intervento prevede il frazionamento e la completa ristrutturazione di un prestigioso immobile situato all'ultimo piano di uno stabile dotato di ascensore, all'interno del quale verranno realizzate quattro esclusive unità abitative.
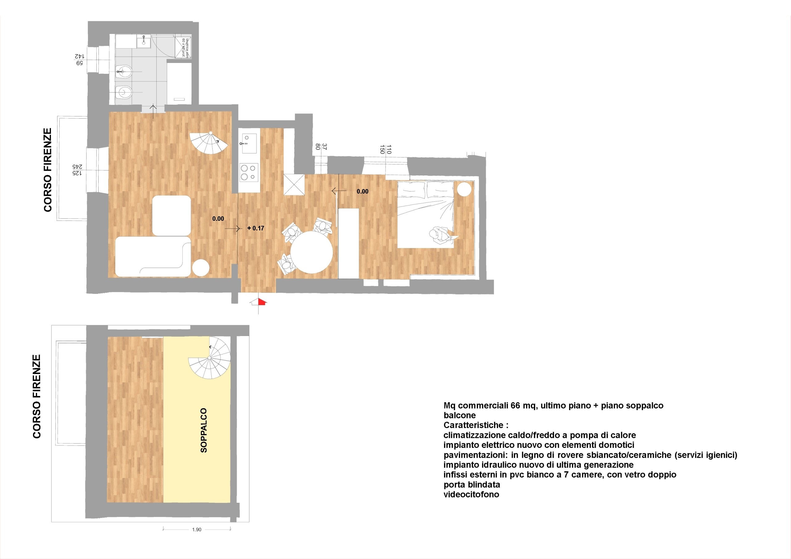
La prima unità di mq 66 è composta da; ingresso su un ampio vano open space con angolo cottura, una camera da letto, un soppalco e un servizio.
Ristrutturato con utilizzo di materiali di pregio e una cura artigianale per i dettagli. Le finiture includeranno porte blindate di ultima generazione e porte interne in continuità cromatica con il battiscopa e la boiserie, creando un ambiente armonioso e moderno completato da nuovi impianti e infissi in PVC con doppi vetri per un isolamento termico e acustico ottimale.

Grazie alla collocazione privilegiata e all'esposizione, gli ambienti godranno di una straordinaria luminosità e di un’atmosfera di assoluta tranquillità, conferendo all'abitare un tocco di indiscutibile prestigio.
Doppio accesso allo stabile tramite Corso Carbonara e Corso Solferino.
Questa combinazione tra posizione strategica e qualità costruttiva rende le soluzioni abitative perfette sia per chi cerca una prima casa, sia per chi desidera un investimento immobiliare sicuro e redditizio.

La consegna delle proprietà è prevista per settembre 2026.

Richiesta euro 205.000,00.

Per informazioni STUDIO IMMOBILIARE VILLANI SRL Alessandro Villani cell. 3357192871 tel. 010391010 e-mail info@immobiliarevillani.it.
Planimetria, superfici, e tutti i dati degli immobili qui pubblicati, sono prettamente indicativi e non potranno essere utilizzati come parte integrante di un eventuale contratto sia di vendita che locazione della proprietà.
La descrizione ha valore puramente indicativo e non costituisce elemento contrattuale.
Tipologia
Categoria
Indirizzo
Corso Carbonara
Comune
Metri Quadri
42mq
Vani
3
Condizioni
Spese mensili
€ 0 /mese
Piano
4
Classe energetica

Richiedi informazioni su questo immobile

Se sei interessato a questo immobili inserisci i tuoi dati, ti ricontatteremo nel minor tempo possibile.

1. Informazioni generali

La presente informativa è resa ai sensi dell’articolo 13 del Decreto Legislativo n.196 del 2003, Codice in Materia di Protezione dei Dati Personali, agli utenti del portale e dei servizi web di Studio Immobiliare Villani.

La presente informativa è limitata alla navigazione sul sito in questione e non ha valore per i siti esterni anche se consultati a partire da link presenti sul portale e sui siti tematici.

La presente informativa descrive le modalità di gestione del portale web e dei siti tematici di Studio Immobiliare Villani in relazione al trattamento dei dati personali degli utenti che lo consultano, che scelgono di registrarsi e/o che utilizzano servizi online.

2. Incaricati del trattamento

I trattamenti relativi ai servizi del portale hanno luogo principalmente presso la sede di Studio Immobiliare Villani. Sono effettuati da personale identificato ed espressamente incaricato in funzione delle specifiche finalità dei servizi richiesti e sottoscritti.

Per i trattamenti in oggetto, Studio Immobiliare Villani può avvalersi dell’aiuto di aziende esterne, consulenti, consorzi, fornitori di software e servizi operanti, tramite personale identificato e incaricato, nell’ambito delle finalità previste e in modo da garantire la massima sicurezza e riservatezza dei dati.

3. Tipi di dati trattati

3.1 Consultazione del portale: dati di navigazione

I sistemi informatici e le procedure applicative preposte al funzionamento del portale di Studio Immobiliare Villani acquisiscono, nel corso del loro normale esercizio, alcuni dati la cui trasmissione è implicita nell’uso dei protocolli di comunicazione sulla Internet.

Tali informazioni vengono utilizzate per ricavare informazioni statistiche anonime sull’uso del portale e per controllarne il corretto funzionamento e non sono associate a utenti identificati; tuttavia per loro natura e mediante associazioni con dati detenuti da terzi, potrebbero consentire l’identificazione degli interessati. Rientra in questa categoria, ad esempio, l’indirizzo IP del sistema utilizzato per collegarsi al portale.

Questi dati vengono rimossi dai sistemi dopo l’elaborazione delle statistiche e sono conservati off-line esclusivamente per accertamenti di responsabilità in caso di reati informatici e consultabili solo su richiesta dell’autorità giudiziaria.

3.2 Dati forniti volontariamente dall’utente nell’utilizzo di servizi on line

Per l’utilizzo di servizi on-line che prevedono l’autenticazione, la registrazione o l’invio di e-mail sono utilizzati dati personali forniti liberamente dagli utenti secondo diverse modalità:

3.2.1 Servizi on line per studenti e personale di Studio Immobiliare Villani
I dati personali degli studenti e dei laureati, acquisiti con l'immatricolazione e l'iscrizione o con successive eventuali modalità apposite di raccolta, e i dati personali dei dipendenti e/o collaboratori di Studio Immobiliare Villani eventualmente acquisti con le procedure e con i servizi on line, saranno trattati per lo svolgimento delle attività istituzionali di Studio Immobiliare Villani, nei limiti stabiliti dalla legge e dai regolamenti, nel rispetto dei principi generali di trasparenza, correttezza e riservatezza come indicato nel Regolamento di attuazione delle norme in materia di protezione dei dati personali.

3.2.2 Registrazione al portale e servizi on line per soggetti esterni a Studio Immobiliare Villani
Persone fisiche o giuridiche esterne a Studio Immobiliare Villani  possono registrarsi al portale per richiedere particolari servizi on line. In fase di registrazione al portale vengono richiesti alcuni dati personali che servono per l’identificazione del soggetto registrato. In fase di sottoscrizione di servizi online potranno essere richiesti dati aggiuntivi, anche sensibili, a seconda dello specifico servizio prescelto. Le finalità di trattamento sono diverse a seconda del servizio e descritte in dettaglio nelle relative pagine di sottoscrizione.

3.2.3 Invio di mail a indirizzi indicati nel portale
L'invio facoltativo, esplicito e volontario di posta elettronica agli indirizzi indicati sul sito comporta la successiva acquisizione dell'indirizzo del mittente, necessario per rispondere alle richieste, nonché degli eventuali altri dati personali inseriti nella missiva.

4. Facoltatività del conferimento dei dati

Alcuni dati richiesti per la registrazione sono obbligatori e il loro mancato conferimento comporta l’impossibilità di registrarsi al portale.

In modo analogo la mancata comunicazione di alcuni dati eventualmente richiesti per la sottoscrizione di servizi online può comportare l’impossibilità di fruire del servizio prescelto.

I dati di registrazione e quelli di sottoscrizione sono conferiti volontariamente.

Il soggetto che effettua la registrazione dà liberamente il consenso al trattamento dei dati, consapevole che in assenza di tale consenso la registrazione e la sottoscrizione dei servizi non possono aver luogo.

5. Modalità del trattamento

I dati personali sono trattati con strumenti automatizzati per il tempo strettamente necessario a conseguire gli scopi per cui sono stati raccolti.

Sono osservate specifiche misure di sicurezza per prevenire la perdita dei dati, usi illeciti o non corretti ed accessi non autorizzati.

6. Utilizzo di cookie

I cookie sono file di testo che vengono depositati sui computer degli utenti web per consentire l’esplorazione sicura ed efficiente del sito e monitorarne l’ utilizzo.

Il sito di Studio Immobiliare Villani utilizza due tipi di cookie tecnici: cookie di sessione per l’autenticazione (servizi on line e aree riservate) e cookie di monitoraggio (Google Analytics).

6.1 Cookie di sessione (indispensabili per l’utilizzo dei servizi on line e per l’accesso alle aree riservate del portale)

ll sito www.immobiliarevillani.it utilizza cookie http di sessione per gestire l’autenticazione ai servizi on-line e alle aree riservate. L’uso di cookie di sessione (che non vengono memorizzati in modo persistente sul computer dell’utente e si eliminano con la chiusura del browser) è strettamente limitato alla trasmissione di identificativi di sessione (costituiti da numeri casuali generati dal server) necessari per consentire l’esplorazione sicura ed efficiente del sito.

La disabilitazione di questi cookie non consente l’utilizzo dei servizi on line.

6.2 Cookie di monitoraggio

I cookie di monitoraggio possono essere disabilitati senza nessuna conseguenza sulla navigazione del portale: per disabilitarli si veda la sezione successiva .

Studio Immobiliare Villani si avvale del servizio Google Analytics della società Google, Inc. (di seguito "Google") per la generazione di statistiche sull'utilizzo del portale web; Google Analytics utilizza cookie (non di terze parti) che non memorizzano dati personali. Le informazioni ricavabili dai cookie sull’utilizzo del sito web da parte degli utenti (compresi gli indirizzi IP) verranno trasmesse dal browser dell’utente a Google, con sede a 1600 Amphitheatre Parkway, Mountain View, CA 94043, Stati Uniti, e depositate presso i server della società stessa.

Secondo i termini di servizio in essere, Google utilizzerà queste informazioni, in qualità di titolare autonomo del trattamento, allo scopo di tracciare e esaminare l’utilizzo del sito web, compilare report sulle attività del sito ad uso degli operatori del sito stesso e fornire altri servizi relativi alle attività del sito web, alle modalità di connessione (mobile, pc, browser utilizzato etc) e alle modalità di ricerca e raggiungimento delle pagine del portale. Google può anche trasferire queste informazioni a terzi ove ciò sia imposto dalla legge o laddove tali terzi trattino le suddette informazioni per conto di Google. Google non associerà gli indirizzi IP a nessun altro dato posseduto da Google.
Per consultare l'informativa privacy della società Google, relativa al servizio Google Analytics, si prega di visitare il sito Internet http://www.google.com/intl/en/analytics/privacyoverview.html.
Per conoscere le norme sulla privacy di Google, si invita a vistare il sito Internet http://www.google.com/intl/it/privacy/privacy-policy.html.

Utilizzando il sito web di Studio Immobiliare Villani, si acconsente al trattamento dei propri dati da parte di Google per le modalità e i fini sopra indicati.

6.2.1.Come disabilitare i cookie (opt-out)

È possibile negare il consenso all’utilizzo dei cookie selezionando l'impostazione appropriata sul proprio browser: la navigazione non autenticata sul portale sarà comunque disponibile in tutte le sue funzionalità.  Di seguito forniamo i link che spiegano come disabilitare i cookie per i browser più diffusi (per altri browser eventualmente utilizzati suggeriamo di cercare questa opzione nell’help del software normalmente disponibile attraverso il tasto F1):

Internet Explorer: http://windows.microsoft.com/it-IT/windows7/Block-enable-or-allow-cookies
Google Chrome: https://support.google.com/chrome/bin/answer.py?hl=it-IT&answer=95647&p=cpn_cookies
Mozilla Firefox:  http://support.mozilla.org/it/kb/Bloccare%20i%20cookie?redirectlocale=en-US&redirectslug=Blocking+cookies
Apple Safari:  http://www.apple.com/it/privacy/use-of-cookies/

In alternativa è possibile disabilitare soltanto i cookie di  Google Analytics, utilizzando il componente aggiuntivo di opt-out fornito da Google per i browser principali. In questo modo sarà possibile utilizzare anche i servizi on-line.

7. Diritti degli interessati

Ai sensi dell’art. 7 del d. lgs. n. 196/2003, l’interessato può esercitare:

il diritto di conoscere:

  1. l’origine dei dati personali,
  2. le finalità e modalità del trattamento,
  3. la logica applicata in caso di trattamento effettuato con l’ausilio di strumenti elettronici,
  4. gli estremi identificativi del titolare, dei responsabili, dei soggetti o delle categorie di soggetti ai quali i dati personali possono essere comunicati o che possono venirne a conoscenza;

il diritto di ottenere a cura del titolare o del responsabile, senza ritardo:

  1. l’aggiornamento, la rettificazione ovvero, quando vi ha interesse, l’integrazione dei dati,
  2. la cancellazione, la trasformazione in forma anonima o il blocco dei dati trattati in violazione di legge, compresi quelli di cui non è necessaria la conservazione in relazione agli scopi per i quali i dati sono stati raccolti o successivamente trattati,
  3. l’attestazione che le operazioni di cui alle precedenti lettere a-b sono state portate a conoscenza, anche per quanto riguarda il loro contenuto, di coloro ai quali i dati sono stati comunicati o diffusi, eccettuato il caso in cui tale adempimento si rivela impossibile o comporta un impiego di mezzi manifestamente sproporzionato rispetto al diritto tutelato;

il diritto di opporsi in tutto o in parte:

  1. per motivi legittimi al trattamento dei dati personali che lo riguardano, ancorché pertinenti allo scopo della raccolta,
  2. al trattamento dei dati personali che lo riguardano ai fini dell’invio di materiale pubblicitario o di vendita diretta ovvero per il compimento di ricerche di mercato o di comunicazione commerciale.

I diritti possono essere esercitati con richiesta al Titolare (Studio Immobiliare Villani, Via dei Mille, 13/r, 16146 Genova | E-mail: info@immobiliarevillani.it).

Leggi le recensioni

Leggi le nostre recensioni su Google e Facebook, la nostra serietà e competenza si vede da come trattiamo i nostri clienti.