Case 100mq Camogli Ruta
Informazioni GalleryCAMOGLI - VILLA INDIPENDENTE CON DEPANDANCE
Immersa nel verde della prima collina di Camogli, precisamente in Via San Giacomo, vendiamo villa indipendente con giardino e dependance. La dimora si sviluppa con armonia su due livelli, offrendo ambienti luminosi e rifiniti con materiali di pregio che ne esaltano l'accoglienza e la modernità. L'immobile è così composto: Al piano terreno; l'ingresso si apre su un ampio ed elegante open-space dedicato alla zona living, e un primo servizio. Al piano primo collegato tramite scala interna; la zona notte ospita due accoglienti camere da letto, un pratico ripostiglio e un secondo bagno padronale. La villa si presenta in ottime condizioni interne, recentemente rinnovata. La proprietà vanta un generoso giardino privato, una vera oasi di pace interamente carrabile che garantisce comodità e massima privacy. Ad arricchire ulteriormente l'offerta, è presente una dependance di circa 20 mq da ristrutturare, ideale come studio, zona ospiti o spazio relax aggiuntivo. Richiesta euro 450.000,00. VENDITA IN COLLABORAZIONE CON MARIOTTI IMMOBILIARE Per ulteriori informazioni o per organizzare una visita: MARIOTTI/STUDIO IMMOBILIARE VILLANI SRL cell. 3484108595 tel. 010391010 e-mail info@immobiliarevillani.it. Planimetria, superfici, e tutti i dati degli immobili qui pubblicati, sono prettamente indicativi e non potranno essere utilizzati come parte integrante di un eventuale contratto sia di vendita che locazione della proprietà. La descrizione ha valore puramente indicativo e non costituisce elemento contrattuale.
CAMOGLI - VILLA INDIPENDENTE CON DEPANDANCE
Richiedi informazioni su questo immobile
Se sei interessato a questo immobili inserisci i tuoi dati, ti ricontatteremo nel minor tempo possibile.
Appartamento 52mq Genova Albaro
Informazioni GalleryALBARO VIA NIZZA 4 VANI CON BALCONE
Nel quartiere di Albaro e precisamente nella centralissima Via Nizza , Proponiamo in vendita appartamento posto al quarto piano con ascensore in contesto tranquillo silenzioso e soleggiato .
L'immobile è composto da : un ingresso , una cucina abitabile, un servizio, una grande camera matrimoniale.
Dalla cucina si accede ad un balcone con esposizione est.
L'appartamento finemente ristrutturato si presenta in ottime condizioni interne .
Categoria catastale A/3 Rendita catastale : 689,47 euro Superfice catastale escluse aree esterne mq 52.
Posizione centrale comoda a mezzi e negozi.
Richiesta euro 209.000,00.
Per informazioni STUDIO IMMOBILIARE VILLANI SRL Alessandro Villani cell. 3357192871 tel. 010391010 e-mail info@immobiliarevillani.it.
Planimetria, superfici, e tutti i dati degli immobili qui pubblicati, sono prettamente indicativi e non potranno essere utilizzati come parte integrante di un eventuale contratto sia di vendita che locazione della proprietà. La descrizione ha valore puramente indicativo e non costituisce elemento contrattuale.
ALBARO VIA NIZZA 4 VANI CON BALCONE
Nel quartiere di Albaro e precisamente nella centralissima Via Nizza , Proponiamo in vendita appartamento posto al quarto piano con ascensore in contesto tranquillo silenzioso e soleggiato .
L'immobile è composto da : un ingresso , una cucina abitabile, un servizio, una grande camera matrimoniale.
Dalla cucina si accede ad un balcone con esposizione est.
L'appartamento finemente ristrutturato si presenta in ottime condizioni interne .
Richiedi informazioni su questo immobile
Se sei interessato a questo immobili inserisci i tuoi dati, ti ricontatteremo nel minor tempo possibile.
Appartamento 38mq Genova Centro
Informazioni GalleryNel cuore pulsante del Centro città e precisamente in Via G. D’Annunzio, comodissimo ai principali mezzi e servizi, all’interno di un elegante edificio, oggetto di un accurato intervento di frazionamento e ristrutturazione totale, proponiamo in vendita nuovo monolocale di circa 38 mq, situato in una delle zone più ricercate di Genova.
L’appartamento è composto da ingresso, vano unico con angolo cottura e maxi finestra lato sud, ripostiglio e bagno con zona lavanderia.
Gli ambienti sono rifiniti con materiali di pregio, pavimentazione in parquet, porta blindata e tapparelle elettriche.
L’unità è dotata di impianto di riscaldamento e climatizzazione con pompe di calore e split, che garantiscono elevata efficienza energetica e comfort in ogni stagione.
Predisposizione lavatrice e asciugatrice.
Soluzione nuova, mai abitata, ideale sia come prima casa che come investimento a reddito. Il fabbricato dispone di ascensori e servizio di portineria 24 ore. La posizione strategica e la qualità dell’intervento rendono queste soluzioni ideali sia come prima casa che come investimento a reddito.
Richiesta euro 148.000,00.
Consegna prevista: fine febbraio 2026
IN COLLABORAZIONE CON CMC immobiliare e CMT consulenze immobiliari di Mario Tessiore.
Per informazioni STUDIO IMMOBILIARE VILLANI SRL Luna Muzio cell. 3471017302 tel. 010391010 e-mail info@immobiliarevillani.it.
Planimetria, superfici, e tutti i dati degli immobili qui pubblicati, sono prettamente indicativi e non potranno essere utilizzati come parte integrante di un eventuale contratto sia di vendita che locazione della proprietà. La descrizione ha valore puramente indicativo e non costituisce elemento contrattuale.
Nel cuore pulsante del Centro città e precisamente in Via G. D’Annunzio, comodissimo ai principali mezzi e servizi, all’interno di un elegante edificio, oggetto di un accurato intervento di frazionamento e ristrutturazione totale, proponiamo in vendita nuovo monolocale di circa 38 mq, situato in una delle zone più ricercate di Genova.
L’appartamento è composto da ingresso, vano unico con angolo cottura e maxi finestra lato sud, ripostiglio e bagno con zona lavanderia.
Richiedi informazioni su questo immobile
Se sei interessato a questo immobili inserisci i tuoi dati, ti ricontatteremo nel minor tempo possibile.
Appartamento 62mq Genova Molassana
Informazioni GalleryNel quartiere di Molassana e precisamente in Via Piacenza, posto al sesto piano di uno stabile con ascensore, proponiamo in vendita appartamento di vani 4.5.
L'immobile è così composto: ingresso, salottino con angolo cottura, camera da letto, bagno e dispensa.
Un balcone in accesso dal salotto. Esposizione sud e ovest.
L'appartamento si presenta in buone condizioni interne con pavimenti in graniglia e finestre nuove.
La cucina è inclusa nella vendita.
Riscaldamento centralizzato.
Posizione comoda a mezzi e negozi.
Richiesta euro 68.000,00.
Per informazioni STUDIO IMMOBILIARE VILLANI SRL cell. 3471017302 tel. 010391010 e-mail info@immobiliarevillani.it.
Planimetria, superfici, e tutti i dati degli immobili qui pubblicati, sono prettamente indicativi e non potranno essere utilizzati come parte integrante di un eventuale contratto sia di vendita che locazione della proprietà. La descrizione ha valore puramente indicativo e non costituisce elemento contrattuale.
Nel quartiere di Molassana e precisamente in Via Piacenza, posto al sesto piano di uno stabile con ascensore, proponiamo in vendita appartamento di vani 4.5.
L'immobile è così composto: ingresso, salottino con angolo cottura, camera da letto, bagno e dispensa.
Un balcone in accesso dal salotto. Esposizione sud e ovest.
L'appartamento si presenta in buone condizioni interne con pavimenti in graniglia e finestre nuove.
La cucina è inclusa nella vendita.
Riscaldamento centralizzato.
Richiedi informazioni su questo immobile
Se sei interessato a questo immobili inserisci i tuoi dati, ti ricontatteremo nel minor tempo possibile.
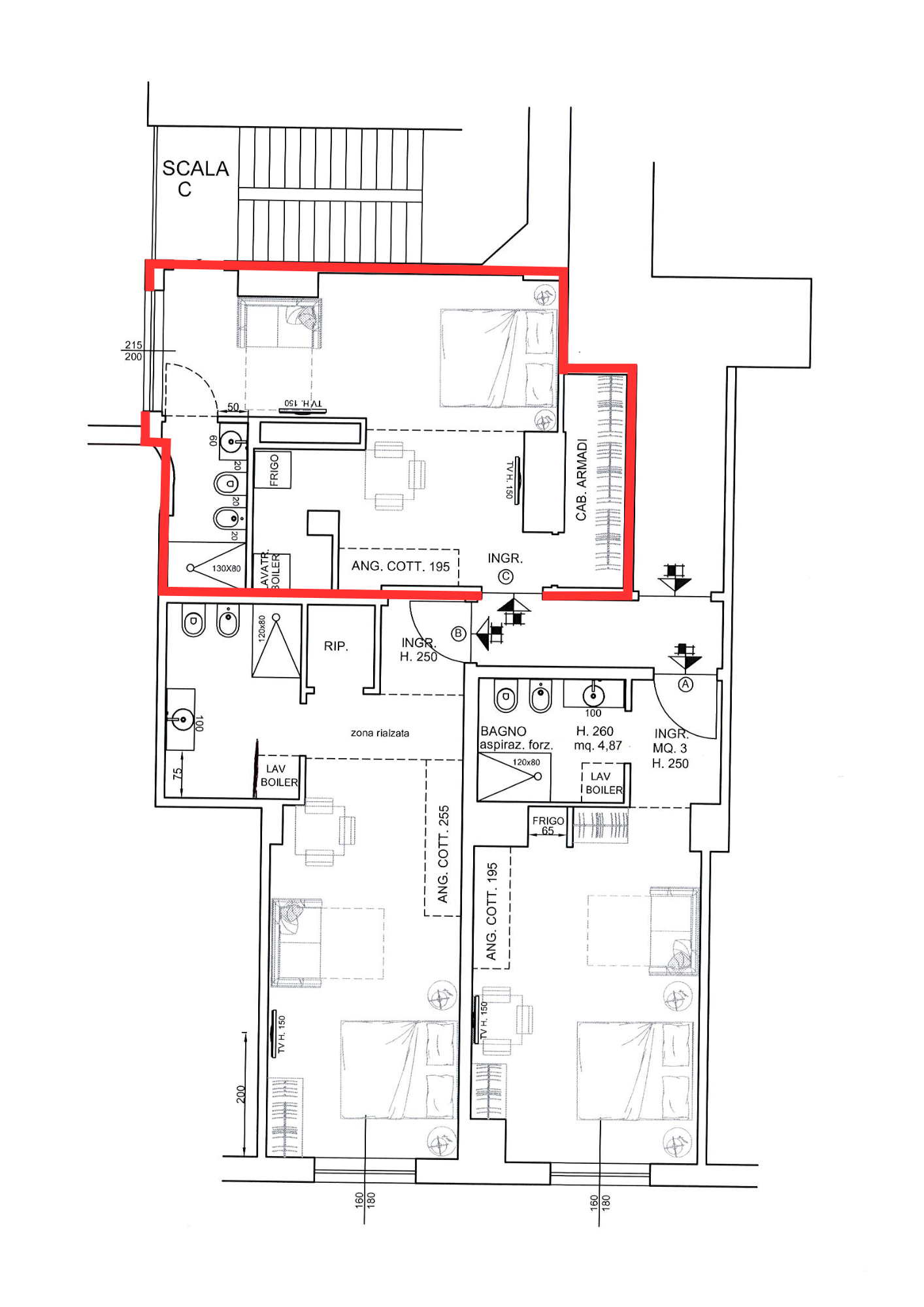
Appartamento 136mq Genova Quarto
Informazioni GalleryNel cuore del quartiere di Quarto, a pochi passi dai servizi principali, proponiamo in vendita un ampio appartamento di 8 vani, situato al terzo piano.
L’immobile si compone di: ingresso, luminoso salone doppio, cucina abitabile, tinello di passaggio, ampia dispensa, due bagni (di cui uno interno alla camera matrimoniale), una camera singola e due spaziose camere matrimoniali.
Completano la proprietà due balconi e un posto auto scoperto, a soli 50 metri dall’abitazione, delimitato da cancello. Grazie alla doppia esposizione est-ovest, con affaccio su Corso Europa sul lato ovest, l’appartamento gode di luce naturale durante tutta la giornata, risultando al contempo silenzioso e riservato.
Internamente si presenta da riordinare, con porta blindata e riscaldamento centralizzato, offrendo la possibilità di personalizzare gli spazi secondo i propri gusti.
Dettagli tecnici:
Categoria catastale: A/3
Superficie catastale: 136 mq (escluse aree esterne)
Rendita catastale: € 1.570,03
Prezzo richiesto: € 368.000
Un’opportunità unica per chi cerca ampi spazi, luminosità e una posizione centrale senza rinunciare alla tranquillità.
Per informazioni STUDIO IMMOBILIARE VILLANI SRL Alessandro Villani cell.3357192871 tel. 010391010 e-mail. info@immobiliarevillani.it Planimetria, superfici, e tutti i dati degli immobili qui pubblicati, sono prettamente indicativi e non potranno essere utilizzati come parte integrante di un eventuale contratto sia di vendita che locazione della proprietà. La descrizione ha valore puramente indicativo e non costituisce elemento contrattuale.
Nel cuore del quartiere di Quarto, a pochi passi dai servizi principali, proponiamo in vendita un ampio appartamento di 8 vani, situato al terzo piano.
L’immobile si compone di: ingresso, luminoso salone doppio, cucina abitabile, tinello di passaggio, ampia dispensa, due bagni (di cui uno interno alla camera matrimoniale), una camera singola e due spaziose camere matrimoniali.
Richiedi informazioni su questo immobile
Se sei interessato a questo immobili inserisci i tuoi dati, ti ricontatteremo nel minor tempo possibile.
Appartamento 33mq Genova Carignano
Informazioni GalleryNel quartiere di Carignano e precisamente in Via Corsica, all’interno di un elegante edificio d’epoca oggetto di un accurato intervento di frazionamento e ristrutturazione totale, proponiamo in vendita nuovo bilocale di circa 33 mq, situato in una delle zone più ricercate e tranquille di Genova.
L’appartamento è composto da ingresso, angolo cottura, bagno e ampio vano unico dove è stato eseguito un restauro conservativo per valorizzare il soffitto decorato con stucchi e cornici.
Gli ambienti sono rifiniti con materiali di pregio, pavimentazione in parquet, infissi in PVC doppio vetro, porta blindata e persiane.
L’unità è dotata di impianto di condizionamento caldo/freddo.
Soluzione nuova, mai abitata, ideale sia come prima casa che come investimento a reddito.
Richiesta: € 146.000, 00
Consegna prevista: marzo 2026
IN COLLABORAZIONE CON CMC immobiliare e CMT consulenze immobiliari di Mario Tessiore.
Per informazioni STUDIO IMMOBILIARE VILLANI SRL Luna Muzio cell. tel. e-mail.
Planimetria, superfici, e tutti i dati degli immobili qui pubblicati, sono prettamente indicativi e non potranno essere utilizzati come parte integrante di un eventuale contratto sia di vendita che locazione della proprietà. La descrizione ha valore puramente indicativo e non costituisce elemento contrattuale.
Nel quartiere di Carignano e precisamente in Via Corsica, all’interno di un elegante edificio d’epoca oggetto di un accurato intervento di frazionamento e ristrutturazione totale, proponiamo in vendita nuovo bilocale di circa 33 mq, situato in una delle zone più ricercate e tranquille di Genova.
L’appartamento è composto da ingresso, angolo cottura, bagno e ampio vano unico dove è stato eseguito un restauro conservativo per valorizzare il soffitto decorato con stucchi e cornici.
Richiedi informazioni su questo immobile
Se sei interessato a questo immobili inserisci i tuoi dati, ti ricontatteremo nel minor tempo possibile.
Appartamento 93mq Genova Carignano
Informazioni GalleryNel quartiere di Carignano e precisamente in Via Corsica, all’interno di un elegante edificio d’epoca oggetto di un accurato intervento di frazionamento e ristrutturazione totale, proponiamo in vendita nuovo appartamento di circa 93mq, situato in una delle zone più ricercate e prestigiose di Genova.
L’abitazione si apre su un ampio e luminosissimo open space, dove la cucina a vista dialoga armoniosamente con la zona living. Protagonista assoluta dell’ambiente è la splendida bow window, una raffinata finestra panoramica che regala una straordinaria luminosità naturale e conferisce prestigio e carattere all’intero appartamento, creando un angolo unico e suggestivo.
La zona notte comprende due camere da letto, una zona lavanderia con predisposizione per lavatrice e asciugatrice, e doppi servizi, di cui uno finestrato.
Gli interni sono curati nei minimi dettagli e rifiniti con materiali di altissimo livello. Il restauro conservativo ha preservato e valorizzato il parquet alla genovese originale d’epoca, mentre i soffitti decorati con stucchi e cornici restaurati conferiscono agli ambienti un’eleganza senza tempo.
Completano la proprietà infissi in PVC con doppi vetri, porta blindata, tapparelle elettriche e pavimenti in grès nei bagni.
L’appartamento è dotato di impianto di riscaldamento centralizzato e predisposizione per l’impianto di condizionamento.
Richiesta: € 468.000, 00
Consegna prevista: marzo 2026
IN COLLABORAZIONE CON CMC immobiliare e CMT consulenze immobiliari di Mario Tessiore.
Per informazioni STUDIO IMMOBILIARE VILLANI SRL Luna Muzio cell. tel. e-mail.
Planimetria, superfici, e tutti i dati degli immobili qui pubblicati, sono prettamente indicativi e non potranno essere utilizzati come parte integrante di un eventuale contratto sia di vendita che locazione della proprietà. La descrizione ha valore puramente indicativo e non costituisce elemento contrattuale.
Nel quartiere di Carignano e precisamente in Via Corsica, all’interno di un elegante edificio d’epoca oggetto di un accurato intervento di frazionamento e ristrutturazione totale, proponiamo in vendita nuovo appartamento di circa 93mq, situato in una delle zone più ricercate e prestigiose di Genova.
Richiedi informazioni su questo immobile
Se sei interessato a questo immobili inserisci i tuoi dati, ti ricontatteremo nel minor tempo possibile.
Appartamento 171mq Genova Sturla
Informazioni GalleryDIMORA STORICA VISTA MARE: L'Eleganza di Vernazzola
Proponiamo in vendita un'opportunità immobiliare unica nel suo genere, situata nel cuore del rinomato quartiere di Sturla, al confine con la suggestiva Vernazzola.
Inserito in una prestigiosa villa d'epoca del '900, questo appartamento offre un'esperienza abitativa rara, dove il fascino storico si fonde con una posizione dominante e una vista mare frontale mozzafiato, ideale per godere di albe e tramonti romantici da ogni angolo della casa.
L'appartamento si sviluppa su tre livelli.
Il piano terra ospita un'ampia camera da letto matrimoniale con bagno padronale e una zona lavanderia.
Salendo al piano d'ingresso tramite scala interna, troviamo un ampio salone open-space, la cucina, una camera matrimoniale e un bagno.
Al piano superiore, infine, un soppalco con accesso tramite scala interna conduce a una cameretta e a un terzo servizio.
L'immobile unisce la bellezza senza tempo dell'architettura d'epoca al comfort moderno e all'esclusività.
La posizione è privilegiata, dominante sul mare, con il plus di un accesso carrabile privato, una comodità rara per la zona.
La villa vanta uno stile architettonico distintivo, con ampie finestre ad arco che garantiscono una luminosità naturale eccezionale.
All'interno, i dettagli narrano la storia della dimora, con soffitti decorati e stucchi originali meticolosamente conservati.
La proprietà è circondata inoltre da un giardino terrazzato, una vera oasi di tranquillità dove godere della brezza marina. I vari livelli, collegati da sinuosi percorsi in pietra naturale, sono perfetti per momenti di benessere e convivialità, offrendo scorci suggestivi e funzionali.
Richiesta euro 960.000,00.
Per informazioni Luna Muzio cell. 3471017302 tel. 010391010 e-mail info@immobiliarevillani.it.
Planimetria, superfici, e tutti i dati degli immobili qui pubblicati, sono prettamente indicativi e non potranno essere utilizzati come parte integrante di un eventuale contratto sia di vendita che locazione della proprietà. La descrizione ha valore puramente indicativo e non costituisce elemento contrattuale.
DIMORA STORICA VISTA MARE: L'Eleganza di Vernazzola
Proponiamo in vendita un'opportunità immobiliare unica nel suo genere, situata nel cuore del rinomato quartiere di Sturla, al confine con la suggestiva Vernazzola.
Inserito in una prestigiosa villa d'epoca del '900, questo appartamento offre un'esperienza abitativa rara, dove il fascino storico si fonde con una posizione dominante e una vista mare frontale mozzafiato, ideale per godere di albe e tramonti romantici da ogni angolo della casa.
L'appartamento si sviluppa su tre livelli.
Richiedi informazioni su questo immobile
Se sei interessato a questo immobili inserisci i tuoi dati, ti ricontatteremo nel minor tempo possibile.
Appartamento 109mq Genova Castelletto
Informazioni GalleryCASTELLETTO – VIA PERTINACE 6
Nel cuore del quartiere di Castelletto e precisamente in Via Pertinace, nella parte iniziale e più comoda alla città, proponiamo in vendita appartamento di vani 6,5, posto al piano terra sul lato sud-est e corrispondente a un primo piano sul lato ovest, di uno stabile elegante e ordinato, senza barriere architettoniche.
L’immobile è così composto: ingresso, soggiorno, tre camere da letto, cucina abitabile, bagno e un grande ripostiglio.
L’appartamento gode di tripla esposizione (sud, est, ovest) che lo rende soleggiato, luminoso e silenzioso.
Internamente si presenta da riordinare, dotato di porta blindata e riscaldamento autonomo.
Categoria catastale A/3 – Superficie catastale mq 109 escluse aree esterne. Rendita catastale € 788,89.
Prezzo richiesto: €122.000, 00
Per informazioni STUDIO IMMOBILIARE VILLANI SRL Alessandro Villani cell tel. e-mail.
Planimetria, superfici, e tutti i dati degli immobili qui pubblicati, sono prettamente indicativi e non potranno essere utilizzati come parte integrante di un eventuale contratto sia di vendita che locazione della proprietà.
La descrizione ha valore puramente indicativo e non costituisce elemento contrattuale.
CASTELLETTO – VIA PERTINACE 6
Nel cuore del quartiere di Castelletto e precisamente in Via Pertinace, nella parte iniziale e più comoda alla città, proponiamo in vendita appartamento di vani 6,5, posto al piano terra sul lato sud-est e corrispondente a un primo piano sul lato ovest, di uno stabile elegante e ordinato, senza barriere architettoniche.
L’immobile è così composto: ingresso, soggiorno, tre camere da letto, cucina abitabile, bagno e un grande ripostiglio.
Richiedi informazioni su questo immobile
Se sei interessato a questo immobili inserisci i tuoi dati, ti ricontatteremo nel minor tempo possibile.
Appartamento 108mq Genova Carignano
Informazioni GalleryNel quartiere di Carignano e precisamente in Via Corsica, all’interno di un elegante edificio d’epoca oggetto di un accurato intervento di frazionamento e ristrutturazione totale, proponiamo in vendita nuovo appartamento di circa 108 mq, situato in una delle zone più ricercate e prestigiose di Genova.
L’abitazione si distingue per la straordinaria luminosità e la favolosa esposizione su Via Corsica, che garantisce sole e luce naturale per tutto l’arco della giornata, rendendo gli ambienti ariosi, caldi e accoglienti.
L’ingresso conduce a un ampio open space con cucina a vista, perfetto per vivere in un ambiente moderno e raffinato.
La zona notte comprende due camere da letto, di cui una con servizio privato e ripostiglio soppalcato, una zona lavanderia con predisposizione per lavatrice e asciugatrice, e un secondo bagno finestrato.
Le finiture sono di altissimo livello: è stato eseguito un restauro conservativo volto a preservare e valorizzare il pavimento in graniglia genovese originale d’epoca, mentre i soffitti decorati con stucchi e cornici restaurati e le porte in legno originali donano eleganza e fascino agli ambienti. Il bagno principale è impreziosito da pavimenti in marmo, che ne esaltano lo stile e la raffinatezza.
Completano la proprietà infissi in PVC con doppi vetri, porta blindata e tapparelle elettriche. L’appartamento è dotato di impianto di riscaldamento centralizzato e predisposizione per l’impianto di condizionamento.
Soluzione nuova, mai abitata, ideale sia come prima casa che come investimento a reddito. Richiesta: € 498.000,00.
Consegna prevista: marzo 2026.
IN COLLABORAZIONE CON CMC immobiliare e CMT consulenze immobiliari di Mario Tessiore.
Per informazioni STUDIO IMMOBILIARE VILLANI SRL Luna Muzio cell. 3471017302 tel. 010391010 e-mail info@immobiliarevillani.it.
Planimetria, superfici, e tutti i dati degli immobili qui pubblicati, sono prettamente indicativi e non potranno essere utilizzati come parte integrante di un eventuale contratto sia di vendita che locazione della proprietà. La descrizione ha valore puramente indicativo e non costituisce elemento contrattuale.
Nel quartiere di Carignano e precisamente in Via Corsica, all’interno di un elegante edificio d’epoca oggetto di un accurato intervento di frazionamento e ristrutturazione totale, proponiamo in vendita nuovo appartamento di circa 108 mq, situato in una delle zone più ricercate e prestigiose di Genova.
L’abitazione si distingue per la straordinaria luminosità e la favolosa esposizione su Via Corsica, che garantisce sole e luce naturale per tutto l’arco della giornata, rendendo gli ambienti ariosi, caldi e accoglienti.
Richiedi informazioni su questo immobile
Se sei interessato a questo immobili inserisci i tuoi dati, ti ricontatteremo nel minor tempo possibile.

































































































































































































































































